Krisala Codename Big Heart
Tathawade
Krisala Codename Big Heart, also known as Krisala Aventis, is a thoughtfully designed project offering 2.25 & 3.25 BHK Big Homes for a comfortable and hassle-free lifestyle in Tathawade. Every home is planned to bring in natural light, fresh air, and practical living spaces, keeping families connected to everything they need.
Spread across 3+ acres and rising 26 storeys amidst beautifully landscaped open areas, the project combines advanced Aluform Technology with 40+ premium amenities to enhance your everyday lifestyle. From serene green spaces to activity zones for all age groups, Big Heart seamlessly blends comfort, space, and connectivity—creating a modern, vibrant community in the heart of Tathawade.
From open spaces to premium amenities, your Big Heart lifestyle starts here.
Key Highlights
Codename Big Heart offers 6-storey towers, 4 iconic buildings, and a 3+ acre layout with Aluform Technology, fresh air, natural light, landscaped open areas, and 40+ premium amenities for all generations.
» Spacious Homes
» 3+ Acres Of Land Parcel
» Lifestyle Amenities for all Age Groups
» 2 mins from Aundh Ravet BRTS Road
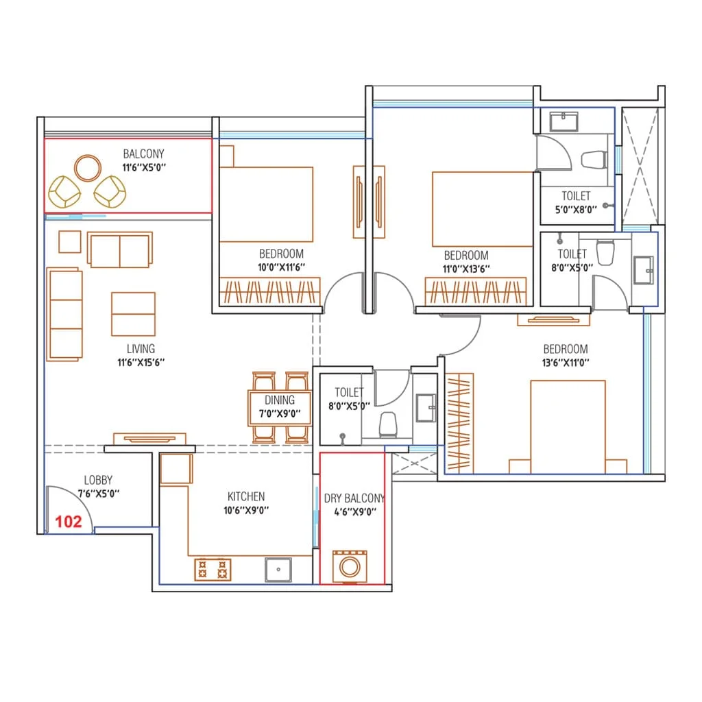
Pricing & Floor Plan
Our homes offer the perfect blend of luxury, comfort, and smart design. With spacious layouts that maximize natural light and airflow, every space feels open and inviting. Thoughtfully planned features ensure a seamless living experience, balancing style with functionality. Whether for relaxation or everyday living, these homes provide the ideal space for modern lifestyles.
Amenities
Krisala Codename Big Heart offers 40+ premium amenities for all generations, blending fitness, leisure, and relaxation. The swimming pool, jogging tracks, Open Gym, and many more facilities are designed to elevate your everyday lifestyle.
Temple
Garden Trail
Party Lawn
Open Gym
Clubhouse
Net Cricket
Seating Area
Skating Rink
Zumba / Aerobics
Swimming Pool
Kids Play Area
Badminton Court
Connectivity
Krisala Codename Big Heart in Tathawade offers excellent connectivity for a smooth and convenient lifestyle. With the Pune-Mumbai Expressway just 10 minutes away and easy access to Wakad, Baner, Hinjawadi, and PCMC, everything you need is close by. Schools, hospitals, IT hubs, and the upcoming metro station are all within easy reach.
